Grégory Ambard

Mutation de Refshaleøen

Du chantier naval à l’espace public, repenser le quartier à différentes échelles

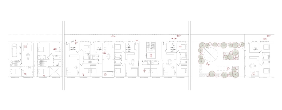
Mutation de Refshaleøen vise à renforcer la connexion entre les deux lignes de côtes de l’île artificielle de Refshaleøen, au Nord-Est de Copenhague. En utilisant un élément paysager fort, un merlon de 650 mètres, celui-ci permet d’initier la création d’un parc faisant le lien entre le quartier en mutation de Refshaleøen et le futur quartier de Lynetteholm. Le parc servira de lien entre les quartiers existants et en développement, tout en gérant la séparation avec les activités industrielles au nord. Le merlon agit comme une barrière protectrice et favorise l’exclusion de la voiture. Il favorise la densité urbaine concentrée, inspirée des modèles d’Amsterdam. Chaque intervention suivra un schéma Mer-Vert-Terre, offrant un accès direct à un jardin ou à l’eau, et comprendra la création d’espaces verts variés. Ils seront tous reliés à une artère principale desservant le quartier dans sa verticalité et facilitant les connexions.

FORMATION INITIALE DEM PAYSAGES HABITÉS : ARCHITECTURES EN SITUATION

DIRECTEUR D'ÉTUDES

Marc Bigarnet

ÉQUIPE PÉDAGOGIQUE

Manuel Appert, Marc Bigarnet, Christophe Boyadjian, Julie Cattant, Nune Chilingaryan, Théo Fort-Jacques, Laurent Mayoud, Yan Olivares

COMPOSITION DU JURY
DE PROJET DE FIN D'ÉTUDES

Manuel Appert, Caroline Barrès-Coquet, Marc Bigarnet, Xavier Bonnaud, Pierre Bouilhol, Christophe Boyadjian, Julie Cattant, Nune Chilingarian, Geoffrey Clamour, Théo Fort-Jacques, Karine Lapray, Élodie Laurent, Élodie Mas, Laurent Mayoud, Yan Olivares, Anne-Sophie Rigal, Chris Younes