Malorie Sicard

De la défense côtière au monde funéraire

Ancienne caserne des carrabiniers d’El Prat de Llobregat

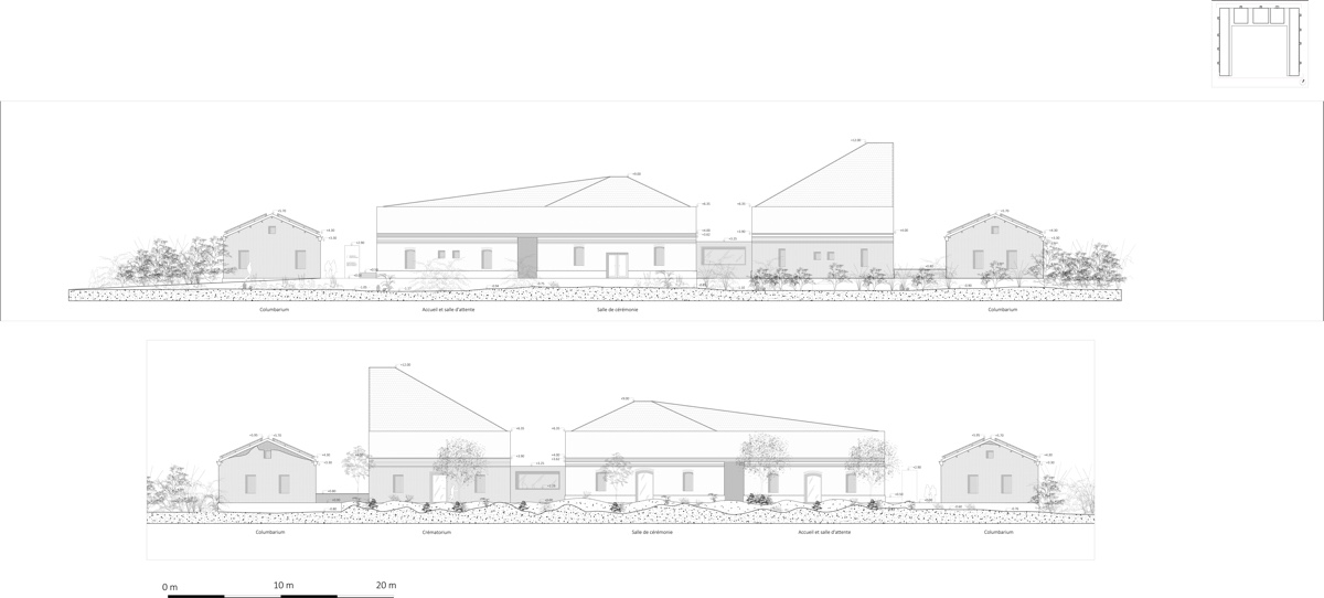
Plongée au sud-ouest de Barcelone, au sud de la ville d’El Prat de Llobregat, la réserve de la Ricarda conserve un témoin du passé. Ce lieu se caractérise par la proximité avec la mer et une végétation massive. Mais dans ce havre de paix, le port et l’aéroport de Barcelone viennent perturber la qualité de la réserve. Lors d’une balade au bord des canaux proche de l’aéroport, une odeur de kérosène est présente, ce qui pose question sur la qualité atmosphérique de la réserve et celle de la faune et de la flore. Le programme propose une continuité entre le site de projet et un espace situé à 2 km en amont. Cela permet de répondre à une demande de service de crémation tout en anticipant la montée des eaux d’ici quelques années et de profiter des espaces libres en bord de mer afin de conserver ceux plus proche d’El Prat de Llobregat. L’objectif d’adapter un bâtiment et un site comme celui évoqué afin d’accueillir les défunts au profit des vivants, tout en prenant en compte l’environnement.

FORMATION INITIALE DEM HÉRITAGES, THÉORIES ET CRÉATION

DIRECTEUR D'ÉTUDES

Julien Correia

ÉQUIPE PÉDAGOGIQUE

Benjamin Chavardès, Julien Correia, Bastien Couturier, Philippe Dufieux, Ricardo Gomez Val, Özlem Lamontre Berk, Alessandro Panzeri, Aïcha Sariane, Caroline Soppelsa

COMPOSITION DU JURY
DE PROJET DE FIN D'ÉTUDES

Caroline Barrès-Coquet, Stéphane Barriquand, Camille Bidaud, Joan Casanelles, Benjamin Chavardès, Julien Correia, Audrey Courbebaisse, Bastien Couturier, Lucie Duc-Dodon, Philippe Dufieux, Ricardo Gomez Val, Céline Gris, François Gruson, Richard Klein, Özlem Lamontre-Berk, Manuel Lopez Segura, Giulia Marino, Éléonore Marrantz, Élodie Mas, Estelle Morle, Luca Montuori, Alessandro Panzeri, Caroline Soppelsa, François Tran, Corine Védrine