Antoine Vantalon

L’Île Piot, un quartier fluvial

Conception d’un projet dans un milieu inondable

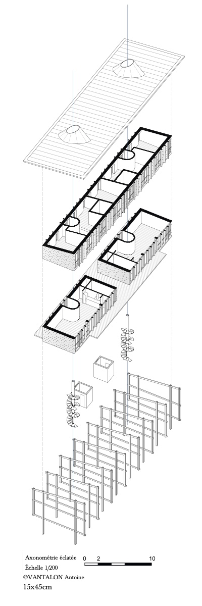
L’Île Piot, un quartier fluvial prend place au sud de l’Île de la Barthelasse, sur la pointe entre Avignon et Villeneuve-lès-Avignon. Le site se trouve entre deux bras du fleuve Rhône, rendant la zone inondable comme une large portion du territoire alentour. L’objectif est de proposer un aménagement urbain à l’échelle urbaine capable de s’adapter aux différentes crues su Rhône. Le projet tend à créer deux strates : le niveau du sol naturel qui est à majorité public et qui peut être arpenter par le plus grand nombre, et des espaces privés alloués aux habitants se trouve aussi à proximité des logements. Ces espaces privés sont partagés entre les riverains. Le deuxième niveau est composé de passerelles reliant chaque bâtiment, à une hauteur déterminée pour qu’en cas de crue, les habitants ne se retrouvent pas isoler dans leurs habitations. Ce dispositif permet aux habitants de s’adapter à l’eau et de retrouver ce contact visuel et physique avec les fluctuations du Rhône, perdu depuis les travaux de la Compagnie Nationale du Rhône en 1973.

FORMATION INITIALE DEM GEOARCHITECTURE BY DESIGN

DIRECTEUR D'ÉTUDES

Romain Chazalon

ÉQUIPE PÉDAGOGIQUE

Romain Chazalon, Luna d’Emilio, Ludovic Ghirardi, Christophe Gonnet, Stéphane Lièvre, Gilles Malzac, Rovy Pessoa Ferreira, Bertrand Rétif, Pierre-Yves Rustant

COMPOSITION DU JURY
DE PROJET DE FIN D'ÉTUDES

Jennifer Buyck, Chiara Cavalieri, Romain Chazalon, Luna d'Emilio, Ludovic Ghirardi, Mathieu Lardière, Stéphane Lièvre, Gilles Malzac, Marie-Agnes Gilot, Aude Mermier, Antoine-Frédéric Nunes, Loïc Parmentier, Rovy Pessoa, Elizabeth Polzella, Carlo Ravagnati, Bertrand Rétif, Pierre-Yves Rustant, Sébastien Sperto, Maëlle Tessier