Pauline Riocreux

Histoire de communs

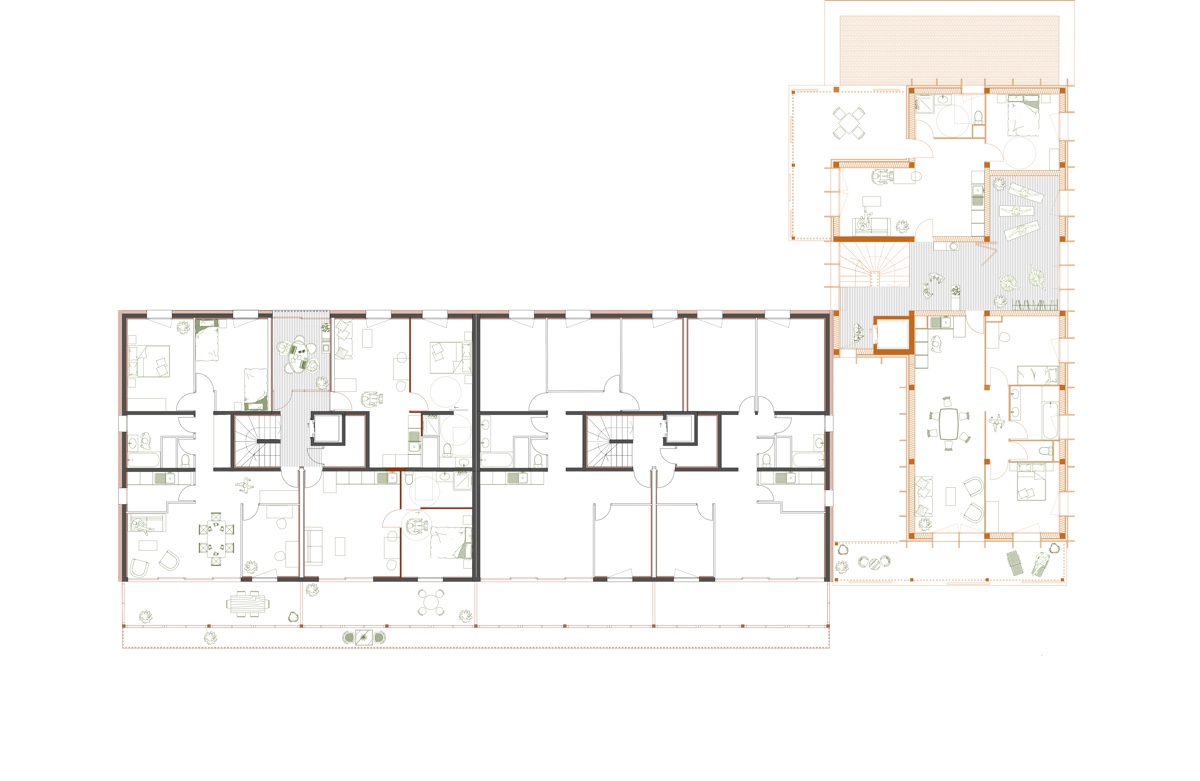
De la rue à l’îlot, en passant par les étages

La résidence Berberis est un logement collectif géré par Habitat et Humanisme depuis 2017. Elle accueille des familles, des personnes seules et âgées rencontrant des difficultés économiques et sociales. La résidence fait face à des problèmes de deal et d’insalubrité qu’Habitat et Humanisme souhaite en partie combattre par un plan de réhabilitation dynamisant le site et éloignant ainsi les activités illégales. Des ateliers, des visites de sites et des rencontres ont été organisés pour récolter la parole habitante et comprendre le fonctionnement ainsi que les besoins de la résidence. Le projet de réhabilitation et d’extension amène à une réflexion plus large sur le devenir des barres d’immeuble des années 70. Leur réhabilitation est un enjeu actuel majeur pour éviter la destruction et améliorer les qualités de vie par le développement d’espaces communs de qualité. De la rue à l’îlot, en passant par les étages, des espaces communs lumineux et confortables jalonnent le cheminement des résidents pour offrir des lieux de partage accessibles à tous.

FORMATION INITIALE DEM EXPÉRIMENTATIONS COLLABORATIVES EN ARCHITECTURE

DIRECTRICE D'ÉTUDES

Cécile Regnault

ÉQUIPE PÉDAGOGIQUE

Romain Anger, Stephan Courteix, Sandra Fiori, Yannick Hoffert, Karine Lapray, Marie-Claire Mitout, Suzanne Monnot, Estelle Morle, Alain Paris, Jean-François Perretant, Oriane Pichod, Cécile Regnault, Jérémie Taite, Corine Védrine, Liliane Viala.

COMPOSITION DU JURY
DE PROJET DE FIN D'ÉTUDES

Romain Anger, Manuel Appert, Suzel Balez, Julia Bonaccorsi, Stephan Courteix, Nicolas Dubus, Sandra Fiori, François Fleury, Camille de Gaulmyn, Sara de Gouy, Muriel Girard, Christophe Gonnet, Yannick Hoffert, Pénéloppe Lallemand, Özlem Lamontre, Karine Lapray, Olivia Lockhart, Marie-Claire Mitout, Suzanne Monnot, Estelle Morle, Nancy Ottaviano, Alain Paris, Loïc Parmentier, Jean-François Perretant, Oriane Pichod, Joanne Pouzenc, Élodie Prud’Homme, Valérie Pueyo, Cécile Regnault, Étienne Régent, Lisa Rolland, Daniel Schoen, Jérémie Taite, Corine Védrine, Liliane Viala, Éric Vincens