Alexia Bastard-Bois / Honorine Salomé

Reconversion des usines de Béchevienne

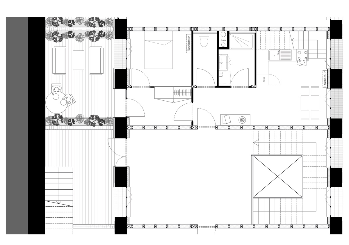
Réhabi(li)ter une friche de manière sobre pour créer un pôle économie circulaire

Les usines textiles de Béchevienne, située dans le quartier d’Estressin à Vienne, en Isère constituent un ensemble industriel de 19 000 m2 composé de plusieurs bâtiments, construits entre le 19e et le 20e siècles et non entretenus depuis 2010. Le site s’insère dans un écrin paysager remarquable, dans le vallon d’une rivière entre deux collines et d’autres friches. Le quartier a été fortement marqué par la présence de grandes entreprises textiles, qui ont fait la renommée de Vienne depuis le 18e siècle. L’état de friche actuel a permis le développement d’une biodiversité. En partenariat avec Vienne-Condrieu Agglomération, le programme consiste en un relogement d’Emmaüs, combiné à une ressourcerie, un bar solidaire et un collectif d’artistes et d’artisans afin de former un pôle d’économie circulaire et solidaire. Les interventions sur le site sont de faible intensité, afin de travailler avec soin et réparer et consolider les bâtiments existants. Un travail sur le végétal et les ressources appropriables du site a été mené.

FORMATION INITIALE DEM EXPÉRIMENTATIONS COLLABORATIVES EN ARCHITECTURE

DIRECTEUR D'ÉTUDES

Yannick Hoffert

ÉQUIPE PÉDAGOGIQUE

Romain Anger, Stephan Courteix, Sandra Fiori, Yannick Hoffert, Karine Lapray, Marie-Claire Mitout, Suzanne Monnot, Estelle Morle, Alain Paris, Jean-François Perretant, Oriane Pichod, Cécile Regnault, Jérémie Taite, Corine Védrine, Liliane Viala.

COMPOSITION DU JURY
DE PROJET DE FIN D'ÉTUDES

Romain Anger, Manuel Appert, Suzel Balez, Julia Bonaccorsi, Stephan Courteix, Nicolas Dubus, Sandra Fiori, François Fleury, Camille de Gaulmyn, Sara de Gouy, Muriel Girard, Christophe Gonnet, Yannick Hoffert, Pénéloppe Lallemand, Özlem Lamontre, Karine Lapray, Olivia Lockhart, Marie-Claire Mitout, Suzanne Monnot, Estelle Morle, Nancy Ottaviano, Alain Paris, Loïc Parmentier, Jean-François Perretant, Oriane Pichod, Joanne Pouzenc, Élodie Prud’Homme, Valérie Pueyo, Cécile Regnault, Étienne Régent, Lisa Rolland, Daniel Schoen, Jérémie Taite, Corine Védrine, Liliane Viala, Éric Vincens